311 (Lot 1) Horsham Downs Road

Bedrooms
3
Shower
2
Land Area
369
​m²
Floor Area
148
​m²
Carpark
1

$850,000

Send Enquiry

$850,000

Send Enquiry
SOLD
Under Contract

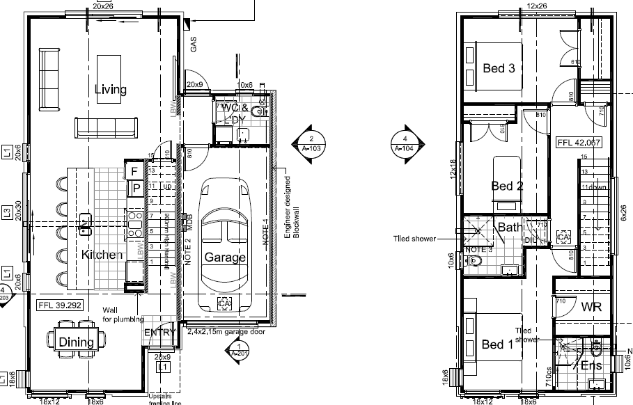
Overview

This distinctive modern home features all the things you would ever want in a home. - This home has a designer kitchen with open plan dining and lounge - Generously proportioned bedrooms, with the master bedroom featuring both an en-suite and a walk-in wardrobe - Designed with living in mind and tastefully appointed Visit our Open Homes - Wednesday to Sunday: 45 Kauri Point Drive, Rototuna North– 11am - 2.15pm 14 Musselwhite Terrace, Greenhill Park - 2.30pm - 5pm

Floor plans available soon

Floor Plans
Download Plans

Images & Floor Plans

Floor Plans
Download Specs & Plans

Home Options

No items found.
No items found.
No items found.
This property is Located At
Learn more about
Kauri Point
10 Year Structural Guarantee Seal

10 Year Structural Guarantee

When you move into your new home, the last thing you want to worry about is the quality of build. We pride ourselves on our craftmanship, and we back our homes with a 10 year structural guarantee. 

Subscribe for the latest updates